Sophisticated living in a two level penthouse 226.50 sqm | Voula
- €2,800,000
Description
Occupying the top two levels of a newly built boutique residence in Voula, this duplex penthouse offers a unique blend of modern elegance, functional design, and privileged location. Situated just 500 meters from Voula Square and close to the Athenian Riviera coastline, it provides an exceptional lifestyle where city comfort meets seaside tranquility.
The Penthouse
Extending across 226.5 sqm on two levels, this residence has been designed with an emphasis on space, natural light, and seamless living.
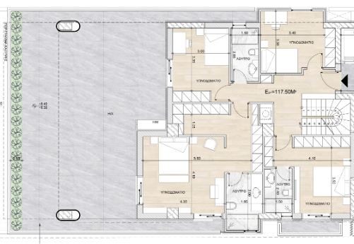
• Second Floor (117.5 sqm) – Four bedrooms in total, including two master suites with en-suite bathrooms, plus two additional bedrooms that share a bathroom. A well-planned layout ensures privacy for each room, while maintaining an elegant flow.
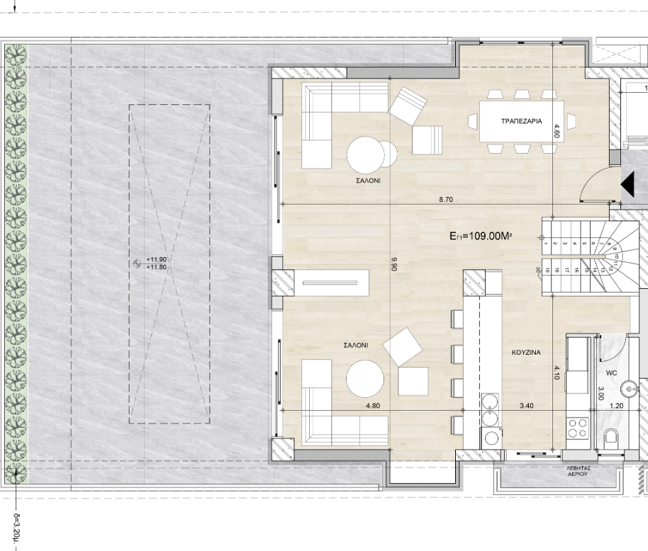
• Third Floor (109 sqm – An impressive open-plan arrangement that combines kitchen, living, and dining areas into one expansive space, complemented by a guest WC. Large openings connect the interiors with outdoor terraces, enhancing the sense of openness and light.
• Design – Premium finishes, underfloor heating, and energy-efficient features highlight both luxury and comfort.
Property Highlights
• Total interior space: 226.5 sqm
• Bedrooms: 4 (2 master suites)
• Bathrooms: 3 (2 en-suite + 1 shared) + 1 WC
• Parking: 2 underground spaces
• Storage: Yes
• Energy Class: A
• Technical specifications: Underfloor heating, solar panels, natural gas boilers, thermal façade (10 cm), external thermal insulation shell (10 cm), window frames Uw = 1.8, multi-split air conditioning.
Location
The penthouse is part of a premium development in a low-density residential zone of Voula, close to parks, open spaces, and essential amenities. Its proximity to the Athenian Riviera offers direct access to beaches, marinas, and fine dining, while remaining just a short distance from Athens’ center.
• Voula Square (town center): 500 m
• Athens City Center (Syntagma): 16 km
• Athens International Airport: 20 km
• Nearest Beach (Voula Seafront): 1.5 km
• Lifestyle proximity: Glyfada marina, golf course, shopping, restaurants, Hellinikon Project
Completion: 2027
A Lifestyle of Distinction
Designed for those who value space, elegance, and contemporary design, this penthouse is more than just a residence — it is a statement of elevated living in one of Athens’ most sought-after coastal suburbs.
A joint listing by Danos, an alliance member of BNP PARIBAS Real Estate and Premier Realty.
For further information, please contact:
Mrs. Iliana Malita: 📞 210 7 567 567, 6951 951 265

Details
-
Price €2,800,000
-
Property Size 226,5 Sqm
-
Bedrooms 3,5
-
Bathrooms 4
-
Garages 2
-
Year Built 2027
-
Property Type Luxury Residential
-
Property Status For Sale
-
City/Area Voula
-
Region Attica / Attiki
Contact Information
View ListingsSimilar Listings
- Alexandra Patsia








